麻吉家装定制|自然主义与东方美学兼具的理想生活
麻吉家装定制|自然主义与东方美学兼具的理想生活-1.jpeg
“不追赶时间,
才能与生活的美好并肩同行。”
麻吉家装定制|自然主义与东方美学兼具的理想生活-2.jpeg
麻吉家装定制|自然主义与东方美学兼具的理想生活-3.jpeg
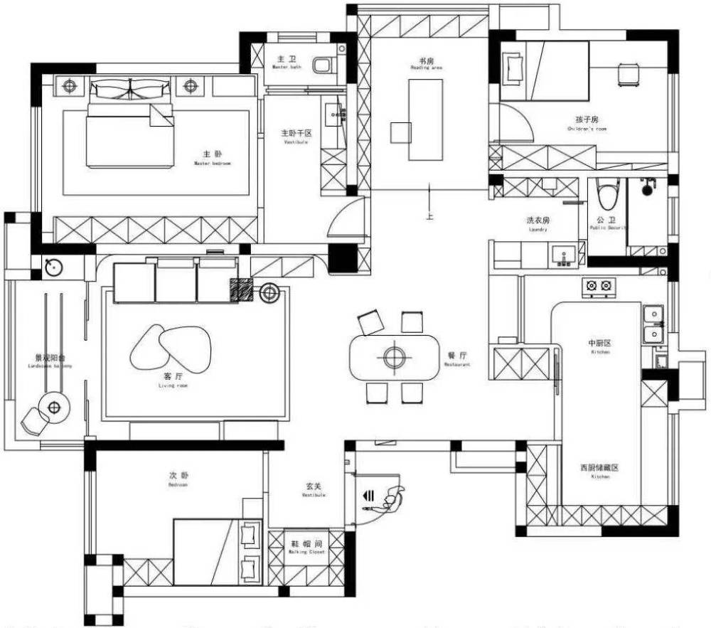
平面设计图 ©
改造分析:
1.在玄关处,沿墙打造收纳结构,满足即时收纳的需求;
2.将小次卧纳入厨房,让中厨与西厨保持独立与贯通;
3.将两卧之间的空间化零为整,设成开放式榻榻米书房,提升家居格调;
4.主卫采用独立干区设计,以开放格局与玻璃隔断实现干湿分离,同步展现通透感。
麻吉家装定制|自然主义与东方美学兼具的理想生活-4.jpeg
△ 给玄关补光的玻璃门
麻吉家装定制|自然主义与东方美学兼具的理想生活-5.jpeg
△ 质朴的莱姆石地砖
玄关以圆形灯膜造型作为视觉焦点,推开家门,迎接你的是圆月般的暖光,它安静地悬在玄关上方,带你享受这一刻归家的仪式感。收纳空间,将日常琐碎变得井然有序,每一次开合,都是心与家的对话,清爽又轻松。
麻吉家装定制|自然主义与东方美学兼具的理想生活-6.jpeg
△ 温暖自然且富有质感的居住氛围
麻吉家装定制|自然主义与东方美学兼具的理想生活-7.jpeg
△ 中古原木风格
麻吉家装定制|自然主义与东方美学兼具的理想生活-8.jpeg
△ 局部优化 功能整合
麻吉家装定制|自然主义与东方美学兼具的理想生活-9.jpeg
△ 注重自然肌理的融合与对比
麻吉家装定制|自然主义与东方美学兼具的理想生活-10.jpeg
△ 以点状光源与隐藏式灯带营造均匀柔和的光环境
麻吉家装定制|自然主义与东方美学兼具的理想生活-11.jpeg
△ 简约温润的茶几
麻吉家装定制|自然主义与东方美学兼具的理想生活-12.jpeg
△ 舒适的空间层次
麻吉家装定制|自然主义与东方美学兼具的理想生活-13.jpeg
△ 柔和的过渡墙面
麻吉家装定制|自然主义与东方美学兼具的理想生活-14.jpeg
△ 精致又怀旧的收音机
墙,还站在原地,用木纹的流域与织物的默片,商量着如何让光住下,给予会客场景开阔感,客厅一隅充满柔情。功能性体块是片柔软的岸,容得下身体,也读得懂情绪。点缀光源,犹如一枚不落的果实,在木的枝头甜了一整晚。
麻吉家装定制|自然主义与东方美学兼具的理想生活-15.jpeg
△ 洄游动线
麻吉家装定制|自然主义与东方美学兼具的理想生活-16.jpeg
△ 绿植以自然性回应画中风景
麻吉家装定制|自然主义与东方美学兼具的理想生活-17.jpeg
△ 通透的餐厨关系
美学,是功能开出的花。耐用的木桌摊开手掌,接住绿影与山野的呼吸,创造惬意的就餐情境。她接过他递来的一杯咖啡,吧台成了一座桥,来自厨房的日光流向餐厅,让所有餐具都静默地亮了起来。
麻吉家装定制|自然主义与东方美学兼具的理想生活-18.jpeg
△ 静谧的气场
麻吉家装定制|自然主义与东方美学兼具的理想生活-19.jpeg
△ 卡座的运用
麻吉家装定制|自然主义与东方美学兼具的理想生活-20.jpeg
△ 文雅的器物
书房构建木阶,轻轻托起清雅环境。序列化柜门,间奏着光影乐曲,打破了暗色基调的沉闷。从香炉里冒出的烟,学着云的停驻姿势,跟随主人指尖落下的字句悠然飘去。茶注满时,端一杯到窗边慢品,五感都得到了滋养。
麻吉家装定制|自然主义与东方美学兼具的理想生活-21.jpeg
△ 色块的对比
麻吉家装定制|自然主义与东方美学兼具的理想生活-22.jpeg
△ 实用的落差造型
麻吉家装定制|自然主义与东方美学兼具的理想生活-23.jpeg
△ 有序的储藏空间
以“待燃的诗”为主题,串联中厨与西厨。取消顶柜,于靠近窗的地方打造壁龛,满足中厨的置物诉求。南瓜与藤篮,在素朴的背景前散发着田园气息。中灶与西台在木质的和弦里交换温度,储藏结构带着一丝书卷气,调和了烟火味。
麻吉家装定制|自然主义与东方美学兼具的理想生活-24.jpeg
△ 符合习惯的布局
睡眠区占据主位,预留出较宽的活动路径,明亮的光映出地上的年轮,既让人松缓,又让人感知到了时间的力量。这种力量被带到阅读区,更显书桌尺度、质感、摆置方向的考究。
麻吉家装定制|自然主义与东方美学兼具的理想生活-25.jpeg
△ 稳定的线条感
麻吉家装定制|自然主义与东方美学兼具的理想生活-26.jpeg
△ 框景之美
麻吉家装定制|自然主义与东方美学兼具的理想生活-27.jpeg
△ 床头暖光
主卧,采取更为开放的处理方式,减少不必要的隔墙以增强空间的通透感。承袭公区的配色与材质,提取窗框独特的分隔比例,演化出与之呼应的床头背景,令人十分心安。柜体,从高到低展露温暖的光与浪漫的艺术笔触,回应窗外多姿多彩的生命力。
麻吉家装定制|自然主义与东方美学兼具的理想生活-28.jpeg
△ 晶莹的玻璃砖
灵动的砖纹组合起来,在睡眠区与洗漱区之间铺展出纵向“湖泊”,呈现自由的光感与通畅的呼吸感。藤编工艺的密度与长条砖形成的肌理展开对比,当水流划过银质水龙头,这方天地便荡漾起愉悦的涟漪。
麻吉家装定制|自然主义与东方美学兼具的理想生活-29.jpeg
△ 合理排布的功能区
洗衣房,在光的晕染下令人感到温馨。木质结构展现舒展的图案脉络,将嵌入式设备拥入怀间,达成视觉的整洁。磨砂玻璃门滤出光亮,为空间引入更多层次和光影,使人一边清洁,一边感受自然的美好。
项目信息 Information
项目名称:合肥·西山林语
项目面积:162㎡
设计机构:麻吉空间联合设计

AI文本分析中……
AI色彩命名中……

序赞Ai时刻等待着你的命令!~

与Ai对话形式持续执行相关Ai智能体任务。

暂时没有评论,你回一个呗!~

您需要登录后才可以回帖 登录 | 注册序赞号

快速回复 返回顶部 返回列表